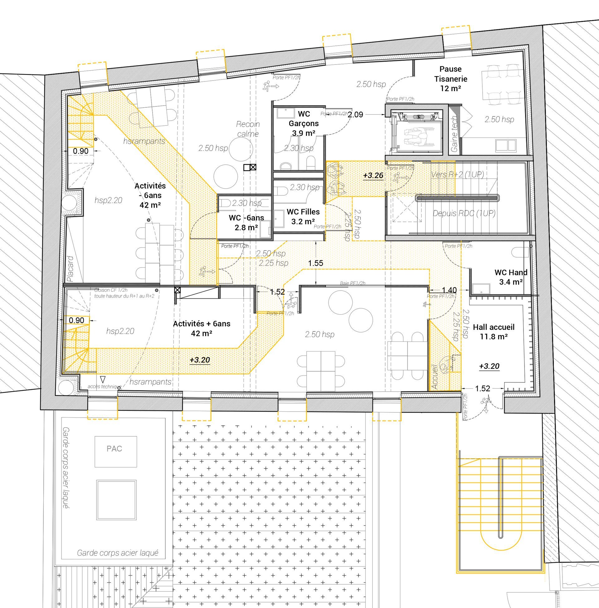
Aménagement d'un accueil Périscolaire
dans un bâtiment existant
Année : 2024 => 2026
Localisation : Saint Andéol le Château (69)
Maître d'Ouvrage : Commune de Beauvallon
Surface : 270 m²
Coût des travaux : Enveloppe allouée de 615 000 € HT
Mission : Complète (conception => livraison du chantier)
Equipe de Maîtrise d'Oeuvre :
PAULAÏS Atelier d'Architecture (Architectes Maîtres d'Oeuvre)
COGIFLUIDE (Bureau d'Etude Fluides)
ECLISSE (Economistes du bâtiment)







