Transformation d'un préau en réfectoire
pour des collégiens et des lycéens
Année : 2018
Localisation : Coteaux du lyonnais (69)
Maître d'Ouvrage : Association Saint Thomas d'Aquin
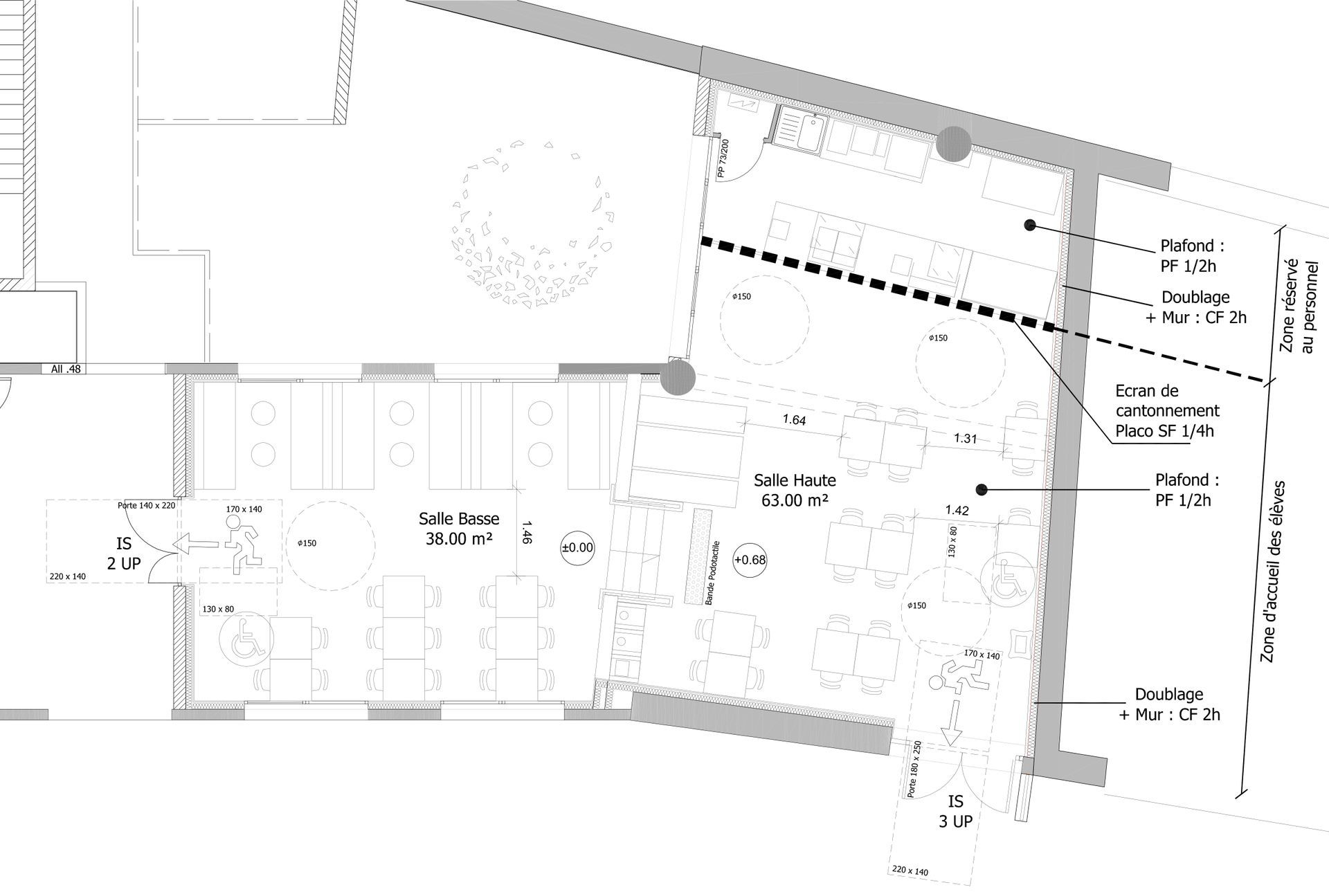
Surface : 101 m²
Coût des travaux : 160 000 € HT
Mission : Conception => Permis de Construire ERP





