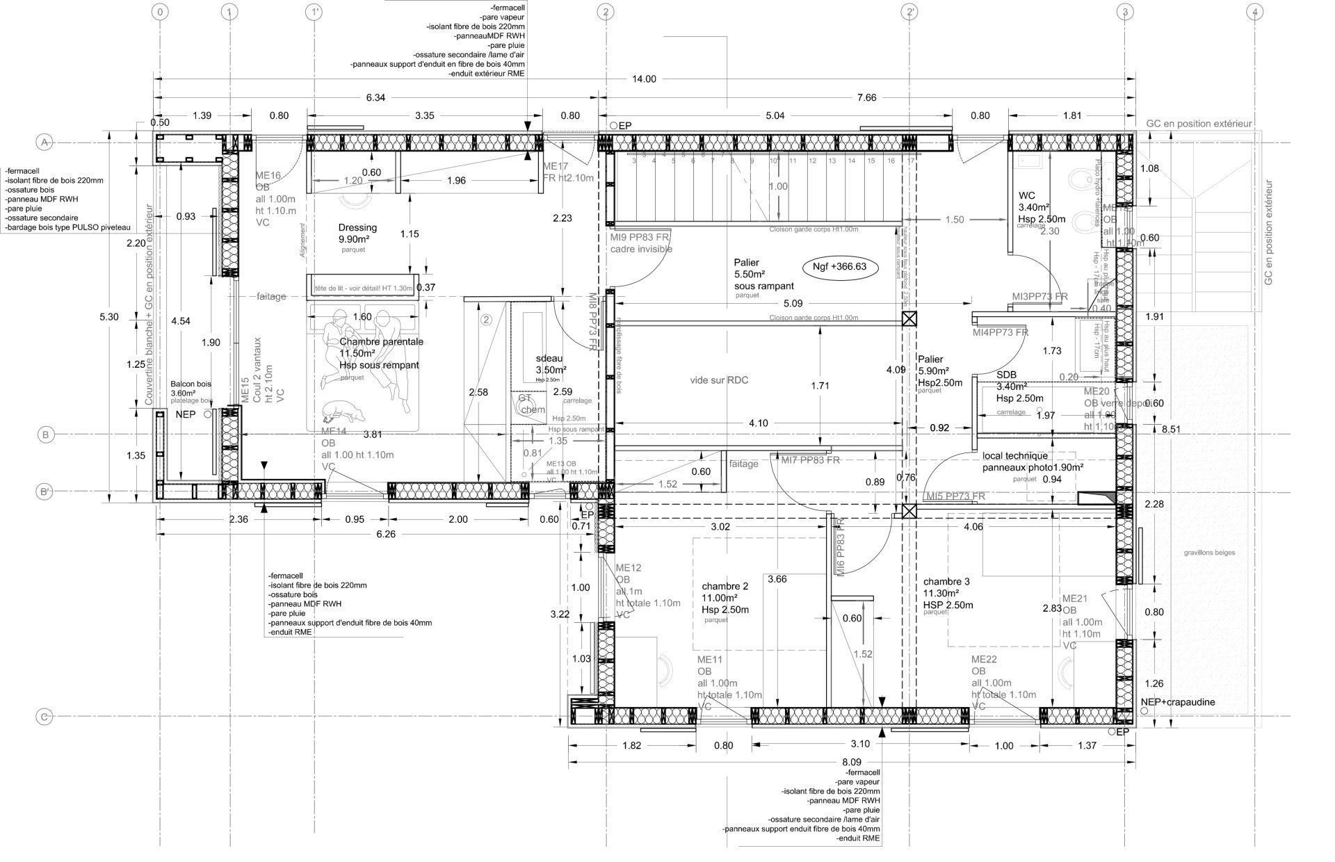
Construction d'une maison "éco-conçue"
Année : 2019 > 2021
Localisation : Coteaux du lyonnais (69)
Maître d'Ouvrage : privé
Surface : 147 m²
Coût des travaux : 410 000 € HT
Mission : Complète (conception => livraison du chantier)





















Construction d'une maison "éco-conçue"
Année : 2019 > 2021
Localisation : Coteaux du lyonnais (69)
Maître d'Ouvrage : privé
Surface : 147 m²
Coût des travaux : 410 000 € HT
Mission : Complète (conception => livraison du chantier)




















