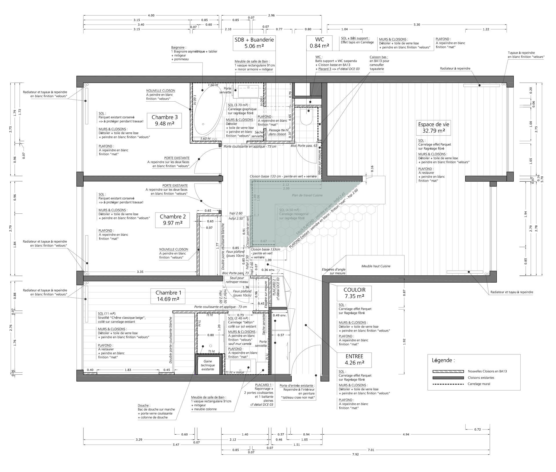
Réaménagement total d'un appartement
Année : 2020
Localisation : Lyon (6ème arrondissement)
Maître d'Ouvrage : privé
Surface : 90 m²
Coût des travaux : 78 000 € HT
Mission : Complète (conception => livraison du chantier)















Réaménagement total d'un appartement
Année : 2020
Localisation : Lyon (6ème arrondissement)
Maître d'Ouvrage : privé
Surface : 90 m²
Coût des travaux : 78 000 € HT
Mission : Complète (conception => livraison du chantier)














