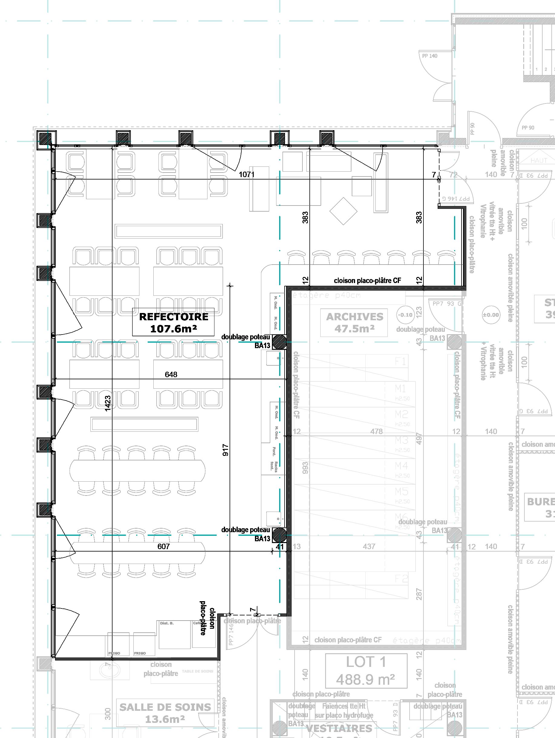
Aménagement d'un réfectoire pour un immeuble de bureaux de divers entreprises
chez "Stéphane Aubey Architecte DPLG"
Année : 2017
Localisation : Lyon (7ème arrondissement)
Maître d'Ouvrage : Privé
Surface du projet : 108 m²
Coût des travaux avec mobilier : 80 000 € HT
Mission : Conception + plans PRO + Suivi architectural






